9. Januar 2026
Multifunktionsgebäude am Sportplatz am Höst kommt 2026!
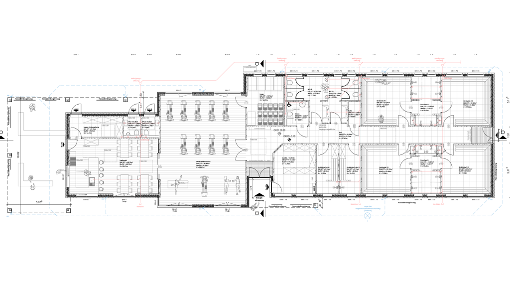
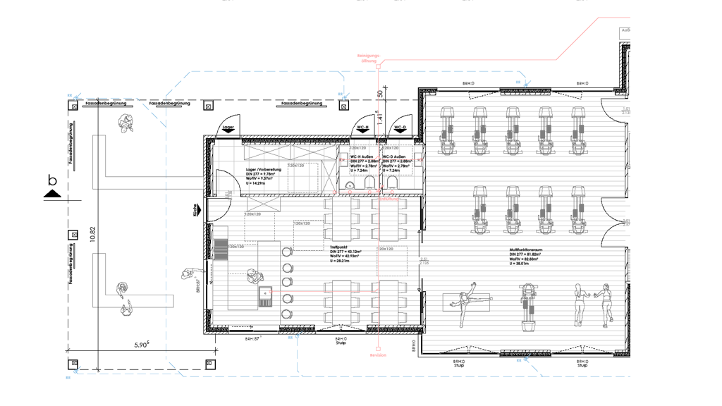
Nachdem Bürgermeister Heinz Trauernicht und Ministerin Daniela Behrens am 1. Dezember 2023 die Sportanlage am Höst eröffneten, wird der Platz täglich vom VfB Uplengen intensiv genutzt, aber auch von der Oberschule und den anderen Uplengener Fußballvereinen in Anspruch genommen. Bereits seit 2020 wurde parallel zu den Planungen des Sportplatzes mit ersten Entwürfen für ein Multifunktionsgebäude begonnen, welches dort, wo sich die alte Blockhütte des VfB Uplengen befindet, gebaut werden soll. Das Multifunktionsgebäude erhält neben einem 80 Quadratmeter großen Mehrzweckraum in dem Indoor-Cycling-Kurse, Yoga, Tanzen oder dergleichen stattfinden können auch vier Umkleidekabinen, wobei sich je zwei Umkleideräume einen Duschraum teilen. Ferner entstehen zwei Schiedsrichterumkleiden, WC-Räume sowie ein Geräte- und Technikraum und ein Lagerraum sowie ein Aufenthaltsraum, aber auch eine angrenzende, überdachte Terrasse. Es sind aber auch zusätzliche WCs eingeplant, die von außen für die Zuschauer erreichbar sind. Falls das Gebäude mal abgeschlossen sein sollte, kann somit dennoch eine Toilette während der Öffnungszeiten des Sportgeländes aufgesucht werden.
Errichtet wird ein nachhaltiger Holz-Massivbau mit Brettsperrholzplatten. Das Flachdach wird begrünt und mithilfe von Regenwasserzisternen bewässert. Ferner sind eine Fotovoltaikanlage und Fassadenbegrünung geplant.
Die Genehmigung wurde im Dezember 2025 erteilt. Bürgermeister Trauernicht zufolge wird der Baustart für das erste Quartal 2026 angepeilt und noch in diesem Jahr soll das Gebäude fertiggestellt werden. Die Kosten inklusive Planungsleistungen und Außenanlagen belaufen sich auf circa eine Million Euro. Die Hälfte der Kosten werden über Fördermittel abgedeckt, ein Viertel trägt die Gemeinde Uplengen und ein weiteres Viertel wird vom VfB Uplengen übernommen.




























































































